Продаж

Офісно-адміністративне приміщення

м.Львів вул. Шевченка Т., 1 поверх з 10

Площа:11123м2

Висота стелі:м

Кількість кімнат:0

Тип будівлі: новобудова

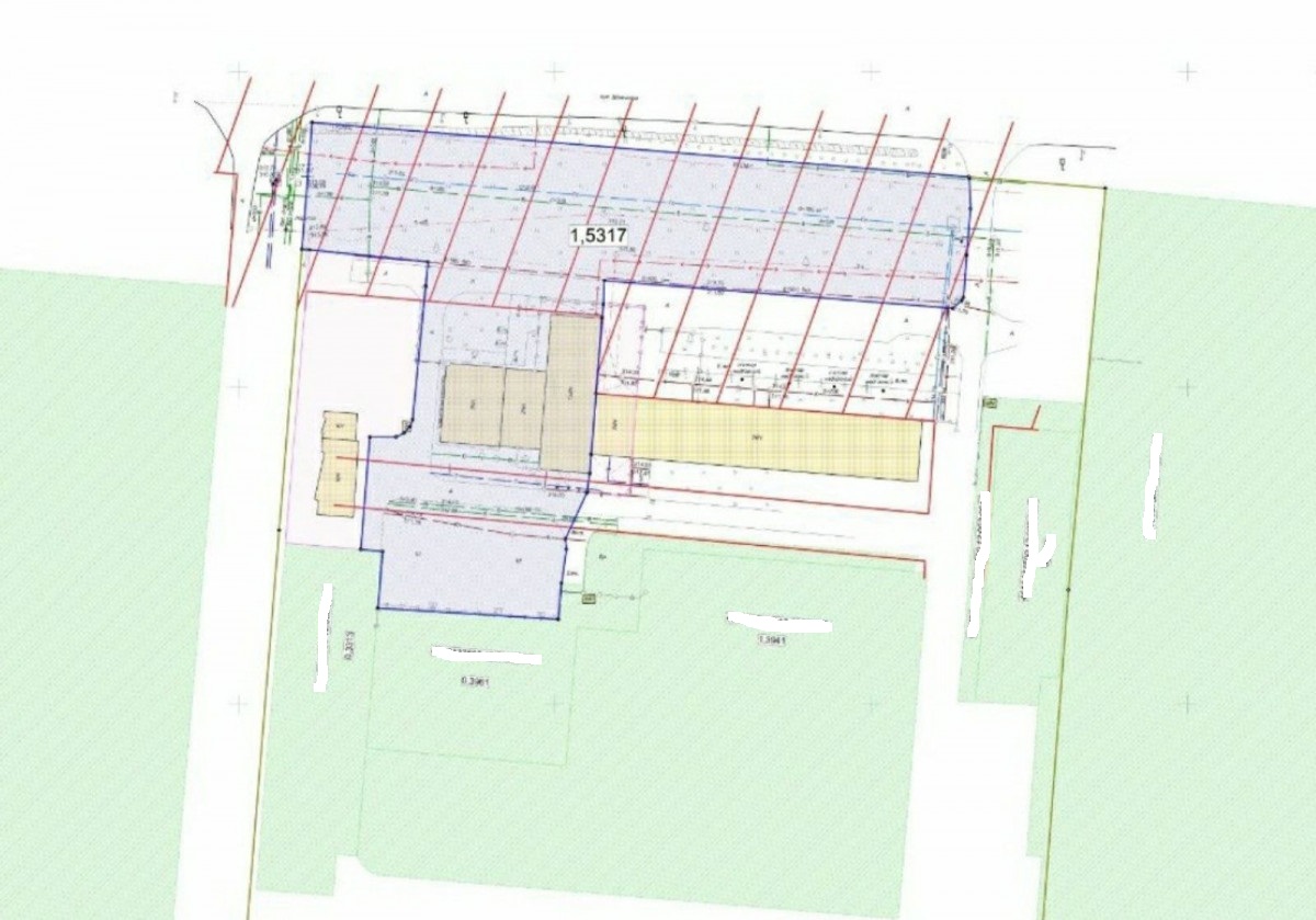
Площа ділянки:2

Матеріал стін: цегла

Стан: потребує ремонту

Тип кімнат: ізольовані

Продається офісно-торгове приміщення у Львові,'nbsp; площею 11 123 кв. м, 1.53 га в постійному користування, 210 кВт, фасад на магістральну вулицю, чиста фірма.
Послуги агентства оплачує власник.

56 000 000 грн / об'єкт

1 400 000 у.о.

Код:11768