Na sprzedaż

2-pokojowe mieszkanie

m.Львів, Kolejowy dzielnicy, ulica Вернигори, 5 podłoga z 5

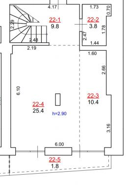
Obszar:91m2

Wysokość sufitu:3m

Liczba pokoi:2

Rodzaj budynku: nowy budynek

Ogrzewanie: kocioł jest dwufunkcyjny

Korzyści: oddzielne

Materiał ścian: cegła

Stan: bez wykończenia

Rodzaj pokoi: izolowane

Cena za: mieszkanie

Dodatkowo: loggia

10 944 000 UAH / mieszkanie

273 600 y.o.

Kod:13140