Продаж

2-кімнатна квартира

м.Львів, Шевченківський район, вул. Миколайчука І., 10 поверх з 16

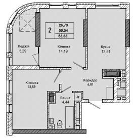
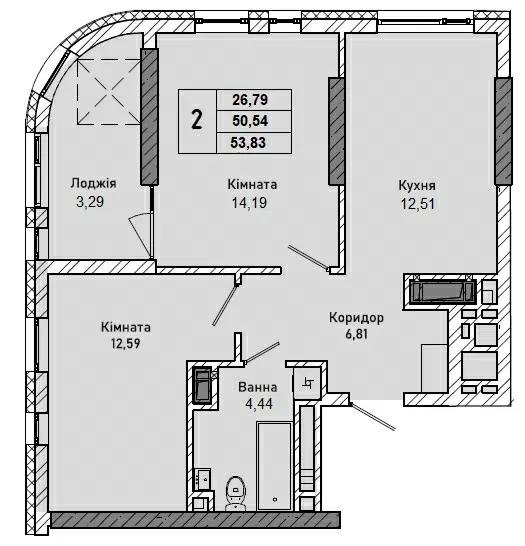
Площа:54/32/11м2

Висота стелі:м

Кількість кімнат:2

Тип будівлі: новобудова

Опалення: будинкове

Вигоди: роздільні

Матеріал стін: цегла

Стан: без оздоблення

Тип кімнат: ізольовані

Ціна за: квартиру

Продаж 2 кв вул Миколайчука -Щурата новобудова здача 4 кв 26 р о/цикл котельня на даху чорнова стяжка розвинине інфраструктура ціна 65000 у.о'nbsp;

097-634-53-98

Написати у Viber

Марія Богданівна

2 600 000 грн / квартиру

65 000 у.о.

Код:13079