Оренда

Офісно-адміністративне приміщення

м.Львів, Залізничний район, вул. Залізнична(Привокзальна),

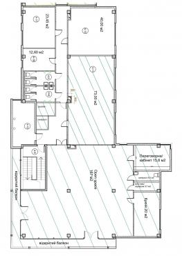
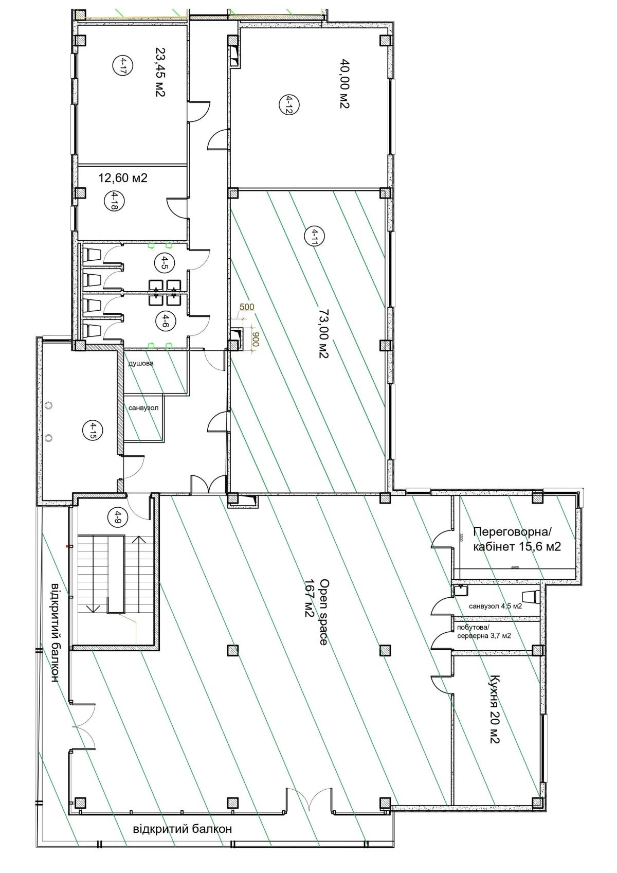
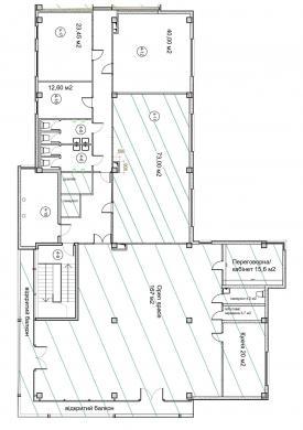
Площа:73м2

Висота стелі:м

Кількість кімнат:0

Тип будівлі: новобудова

Площа ділянки:0

Матеріал стін: цегла

Стан: відмінний

Тип кімнат: ізольовані

Здаються офіси по вул. Залізнична (Привокзальна)
приміщення площею від 73 до 310 кв. м
Повністю енергонезалежна будівля з сонячною станцією, газововою та твердопаливною котельнею
Висота стелі 3,2 - 5,7 м. Приміщення повністю автономне з окремим входом з ремонтом. Меблі, кухня, столи, крісла входять в вартість оренди. Кухня та два санвузли, переговорна, open space. Постійне електропостачання окремою лінією від підстанції до будівлі. Змонтовано сонячну електростанцію. Окремі лічильники на воду, електроенергію, опалення від власної газової та твердопаливної котельні.
Будівля обладнана автономними системами та може функціонувати незалежно від постачання газу та електроенергії енергопостачальними організаціями.
Охоронна та пожежна сигналізація, контроль доступу. Встановлено кондиціонери,
Телефонія та оптоволокно в будівлі. Два незалежних інтернет провайдери. Розведено інтернет мережу з окремого приміщення серверної.
Огороджена територія. З 18.00 до 09.00 вхід по електронних ключах.
Власна охорона з виводом сигналу на пультову організацію.
Відеоспостереження території. Загальна автостоянка за межами території без привязаних паркомісць.
Оренда - 7.5 у.о./кв. м (з ПДВ)

323 грн / кв.м.

8 у.о.

Код:13061